TDSZ电液动扇形闸门

一、用途
本系列电液动扇形闸门是根据建材行业的特殊需要,用作水泥熟料库底除尘设备的理想卸料装置。
二、特点
电液动扇形闸门在出料口处设备了防尘罩,避免了灰尘飞扬:采用电液推杆作动力源,取代气缸传动,节约了工程投资成本;电液动扇形闸门阀体采用阶台结构,减少了料流冲击;阀体关键部位铺设栅栏结构的耐磨衬板,减少了衬板直接磨损。

三、性能参数
| 适用介质 | 干燥粉尘 |
| 工作温度 | ≤150℃ |
| 卸灰量 | 6-80m2/h |
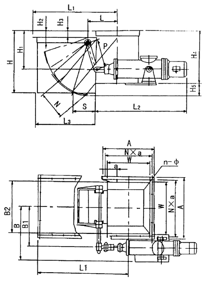
| 型号 | 主要尺寸(mm) | 电液推杆型号 | 功率KW | |||||||||||||||||||
| W | A | A1 | A2 | B | B1 | B2 | L | L1 | L2 | L3 | H | H1 | H2 | H3 | H4 | H5 | P | N×a | n×Φ | |||
| TDSZ-30 | 300 | 400 | 120 | 150 | 350 | 470 | 300 | 300 | 800 | 1175 | 600 | 380 | 429 | 170 | 60 | 340 | 150 | 280 | 2×175 | 8-18 | DYZ700-280/110-P | 1.1 |
| TDSZ-40 | 400 | 500 | 220 | 250 | 400 | 520 | 400 | 350 | 900 | 1175 | 650 | 540 | 429 | 170 | 60 | 480 | 140 | 280 | 3×150 | 12-18 | DYTZ700-280/110-P | 1.5 |
| TDSZ-50 | 500 | 626 | 320 | 350 | 450 | 570 | 500 | 400 | 1050 | 1220 | 737 | 680 | 513 | 190 | 70 | 610 | 120 | 350 | 4×140 | 16-18 | DYTZ700-300/110-P | 1.5 |
| TDSZ-60 | 600 | 726 | 360 | 390 | 500 | 620 | 600 | 450 | 1200 | 1220 | 837 | 750 | 513 | 190 | 70 | 670 | 150 | 350 | 4×165 | 16-18 | DYTZ700-300/110-P | 2.2 |
| TDSZ-70 | 700 | 840 | 460 | 490 | 550 | 670 | 700 | 500 | 1400 | 1340 | 980 | 900 | 560 | 190 | 80 | 820 | 150 | 400 | 5×154 | 20-22 | DYTZ700-350/110-P | 2.2 |
| TDSZ-80 | 800 | 940 | 560 | 590 | 600 | 720 | 800 | 550 | 1550 | 1340 | 1080 | 1050 | 560 | 190 | 80 | 950 | 150 | 400 | 5×174 | 20-22 | DYTZ700-350/110-P | 2.2 |



